Logo
Objekt-Nr.: 7993
Objekt: 73024 - Bild
Prerow – Wohnen, wo die Ostsee das Herz berührt
Standort18375 Ostseebad Prerow
Deutschland
Wichtige Parameter
Kaufpreis:462.500,00 EUR
Grundstück:285 m²
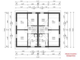
Wohnfläche:100 m²
Zimmer:5
Baujahr:2026
Ansprechpartner
immoweb.de - Potsdam
Herr Nico Auzinger
Telefon:
039931 / 50662
Mobil:
01525 1418856
Email
n.auzinger@immoweb.de
Logo
Lage
Prerow ist ein beliebter Ostseeort auf der Halbinsel Fischland-Darß-Zingst im Landkreis Vorpommern-Rügen. Der Ort liegt direkt an der Ostsee und am Rande des Nationalpark Vorpommersche Boddenlandschaft.

Prerow zeichnet sich durch seine einzigartige Naturlage zwischen Ostseestrand und Boddengewässern aus und ist insbesondere für den breiten, feinsandigen Strand sowie die umliegenden Wälder bekannt. Die ruhige, naturnahe Umgebung macht den Ort zu einem gefragten Erholungs- und Urlaubsziel.
Beschreibung
Im idyllischen Prerow, eingebettet zwischen weitem Himmel, rauschenden Kiefernwäldern und der salzigen Brise der Ostsee, entsteht ein Wohnprojekt mit ganz besonderem Charakter.

Hier wird nicht einfach nur gebaut – hier entsteht ein Zuhause. Ein stilvoll geplantes Doppelhaus, das sich harmonisch und selbstverständlich in das gewachsene Ortsbild dieses traditionsreichen Ostseebades einfügt.

In einer ruhigen, gepflegten Wohnstraße gelegen, verbindet diese attraktive Lückenbebauung das Beste aus zwei Welten: wohltuende Zurückgezogenheit und eine hervorragende Anbindung.

Die Umgebung ist geprägt von liebevoll gestalteten Einfamilienhäusern, eingewachsenen Gärten und einer angenehmen, gewachsenen Nachbarschaft. Ein Ort, an dem man ankommt – und bleiben möchte
Logo
Ausstattung
Die Architektur greift den maritimen Charakter der Region auf und interpretiert ihn auf moderne, stilvolle Weise. Klare Linien, natürliche Materialien und fein abgestimmte Details spiegeln den Charme der Küste wider.

Gauben unterstreichen die traditionelle Bauweise und schenken dem Dachgeschoss nicht nur zusätzliches Licht, sondern auch ein großzügiges, luftiges Raumgefühl. So entsteht ein Wohnambiente, das Wärme, Geborgenheit und norddeutsche Eleganz vereint.

Für das Projekt liegt bereits eine positive Bauvoranfrage vor – eine solide und verlässliche Grundlage für Ihre Zukunftsplanung. Jede Doppelhaushälfte entsteht auf einem eigenen Grundstücksanteil von ca. 285 m² (Gesamtgrundstück nach Teilung ca. 570 m²) und bietet eine Wohnfläche von ca. 100m².

Durchdachte Grundrisse schaffen helle, freundliche Räume mit einer Atmosphäre, die vom ersten Moment an begeistert.

Ob als dauerhafter Lebensmittelpunkt, stilvolles Feriendomizil oder wertbeständige Investition in einer der begehrtesten Lagen an der Ostsee – dieses Projekt eröffnet vielfältige Möglichkeiten.

Die Kosten im Überblick :

• Grundstück (ca. 285 m²): 197.500 €

• Doppelhaushälfte: 265.000 €

• Gesamtpreis pro Haus & Grundstück: 462.500 €

Dieses außergewöhnliche Vorhaben vereint Küstenflair, architektonische Qualität, eine gewachsene Wohnstruktur und eine hervorragende Lage. Eine seltene Gelegenheit, sich in Prerow ein eigenes Stück Ostsee-Heimat zu sichern – und jeden Tag das Gefühl von Urlaub zu Hause zu erleben.
Sonstiges
Haben wir Ihr Interesse geweckt? Wünsche Sie weitere Informationen? Dann melden Sie sich gerne bei unserer Ansprechpartnerin:

Frau M. Kaufmann

01752084327

------------------------------------------------

Auzinger Immobilien tritt nicht als Eigentümer des Grundstücks auf, sondern handelt auf Grundlage einer entsprechenden Vertriebsbeauftragung und bietet lediglich das Grundstück mit einem projektierten Haus zum Verkauf an.

Auzinger Immobilien
Logo
Preise
Kaufpreis462.500,00 EUR
ProvisionspflichtJa
(Außen)-Courtage3,57 inkl. Mwst
Mehrwertsteuersatz (%)19,00 %
Zustand
Baujahr2026
ObjektzustandProjektiert
ObjektalterNeubau
Flächen
Wohnfläche (m²)100 m²
Grundstücksfläche (m²)285 m²
Anzahl der Zimmer5
Anzahl der Schlafzimmer3
Anzahl der Badezimmer1
Anzahl separate WCs1
Ausstattung
AusstattungGehoben
Objektist nicht unterkellert
Verwaltung
Verfügbar2026
Auch als Ferienimmobilie geeignetJa
Logo
Bilder
Bild...
Bild...
Bild...
Bild...
Bild...
Bild...