Logo
Objekt-Nr.: 7995
Objekt: 73029 - Bild
Tarnow bei Bützow – Ankommen, zur Ruhe kommen, Zuhause sein
Standort18246 Bützow Parkow
Deutschland
Wichtige Parameter
Kaufpreis:220.000,00 EUR
Grundstück:2.695 m²
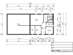
Wohnfläche:75 m²
Zimmer:3
Baujahr:2026
Ansprechpartner
immoweb.de - Potsdam
Herr Nico Auzinger
Telefon:
039931 / 50662
Mobil:
01525 1418856
Email
n.auzinger@immoweb.de
Logo
Lage
Tarnow ist eine Gemeinde im Landkreis Rostock und liegt zwischen den Städten Güstrow und Bützow. Die Umgebung ist ländlich geprägt und zeichnet sich durch weitläufige Felder, Wälder und eine ruhige Wohnlage aus.

Durch die Nähe zu den umliegenden Städten sowie die Anbindung an regionale Verkehrswege ist Tarnow gut erreichbar und bietet eine naturnahe Wohnumgebung mit gleichzeitig guter Infrastruktur im Umland.
Beschreibung
In der beschaulichen Gemeinde Tarnow, nahe der Stadt Bützow, entsteht auf einem großzügigen Grundstück mit ca. 2.695 m² ein moderner Doppelbungalow – geschaffen für Menschen, die ihren nächsten Lebensabschnitt bewusst, komfortabel und sorgenfrei gestalten möchten.

Hier bestimmt nicht Hektik den Alltag, sondern Ruhe, Natur und ein Gefühl von Geborgenheit. Ein Ort, an dem man morgens entspannt in den Tag startet und abends zufrieden die Tür hinter sich schließt.
Logo
Ausstattung
Wohnen ohne Treppen – Freiheit auf einer Ebene

Jede Haushälfte bietet ca. 75 m² Wohnfläche, vollständig ebenerdig geplant. Keine Stufen, keine Hindernisse – stattdessen durchdachte Wege, eine praktische Raumaufteilung und ein Wohnkonzept, das Sicherheit und Selbstständigkeit vereint.

Gerade für Seniorinnen und Senioren bedeutet das:

Mehr Komfort. Mehr Unabhängigkeit. Mehr Lebensqualität.

Ein Zuhause, das mitdenkt – heute und in Zukunft.

Nachhaltig. Wertbeständig. Zukunftssicher.

Beheizt wird der Doppelbungalow mit einer modernen Luftwärmepumpe. Diese energieeffiziente Lösung sorgt für angenehme Wärme und überschaubare Betriebskosten – damit Sie sich auf das Wesentliche konzentrieren können: Ihr Wohlbefinden.

Auf Wunsch kann das Dachgeschoss bereits in der Planung berücksichtigt oder direkt mit ausgebaut werden. Ob für Besuch der Familie, als Hobbybereich oder einfach als zusätzliche Raumreserve – Sie entscheiden. Die Kosten hierfür teilen wir Ihnen gern persönlich mit.

De wichtiigsten Eckdaten:

Grundstück gesamt: ca. 2.695 m²

Doppelbungalow mit ca. 75 m² Wohnfläche je Haushälfte

Komfortables Wohnen auf einer Ebene

Moderne Luftwärmepumpe

Optionaler Dachgeschossausbau möglich

Die Kosten im Überblick :

• Grundstück (ca. 1348 m²): 40.000 €

• Bungalowhaushälfte: 180.000 €

Kaufpreis je Haushälfte inkl. Grundstück: 220.000,00 €
Sonstiges
Dieses Projekt steht für ein neues Kapitel – ruhig, überschaubar und mit dem guten Gefühl, alles richtig gemacht zu haben.

Ein Zuhause, das nicht nur vier Wände bietet, sondern Sicherheit, Beständigkeit und Raum für das, was wirklich zählt.

Gern begleiten wir Sie auf dem Weg zu Ihrem neuen Lebensmittelpunkt.

Kontaktieren Sie hierzu unserer Ansprechpartnerin:

Frau M. Kaufmann

01752084327

--------------------------------------

Auzinger Immobilien tritt nicht als Eigentümer des Grundstücks auf, sondern handelt auf Grundlage einer entsprechenden Vertriebsbeauftragung und bietet das Grundstück mit einem projektierten Haus zum Verkauf an.

Auzinger Immobilien
Logo
Preise
Kaufpreis220.000,00 EUR
ProvisionspflichtJa
(Außen)-Courtage3,57 inkl. Mwst
Mehrwertsteuersatz (%)19,00 %
Zustand
Baujahr2026
ObjektzustandProjektiert
ObjektalterNeubau
Flächen
Wohnfläche (m²)75 m²
Grundstücksfläche (m²)2.695 m²
Anzahl der Zimmer3
Anzahl der Schlafzimmer2
Anzahl der Wohn-Schlafzimmer1
Anzahl der Badezimmer1
Ausstattung
AusstattungGehoben
Objektist nicht unterkellert
Verwaltung
Verfügbar2026
Auch als Ferienimmobilie geeignetJa
Logo
Bilder
Bild...
Bild...
Bild...